fr
espace client
espace client

Votre recherche

Saint-Raphaël (83700)

3 pièces - 77 m²

Agay (83530) - 3 pièces de 77 m² avec terrasse, ...

366 800 €
Ref : TAPP94196
A propos de ce bien
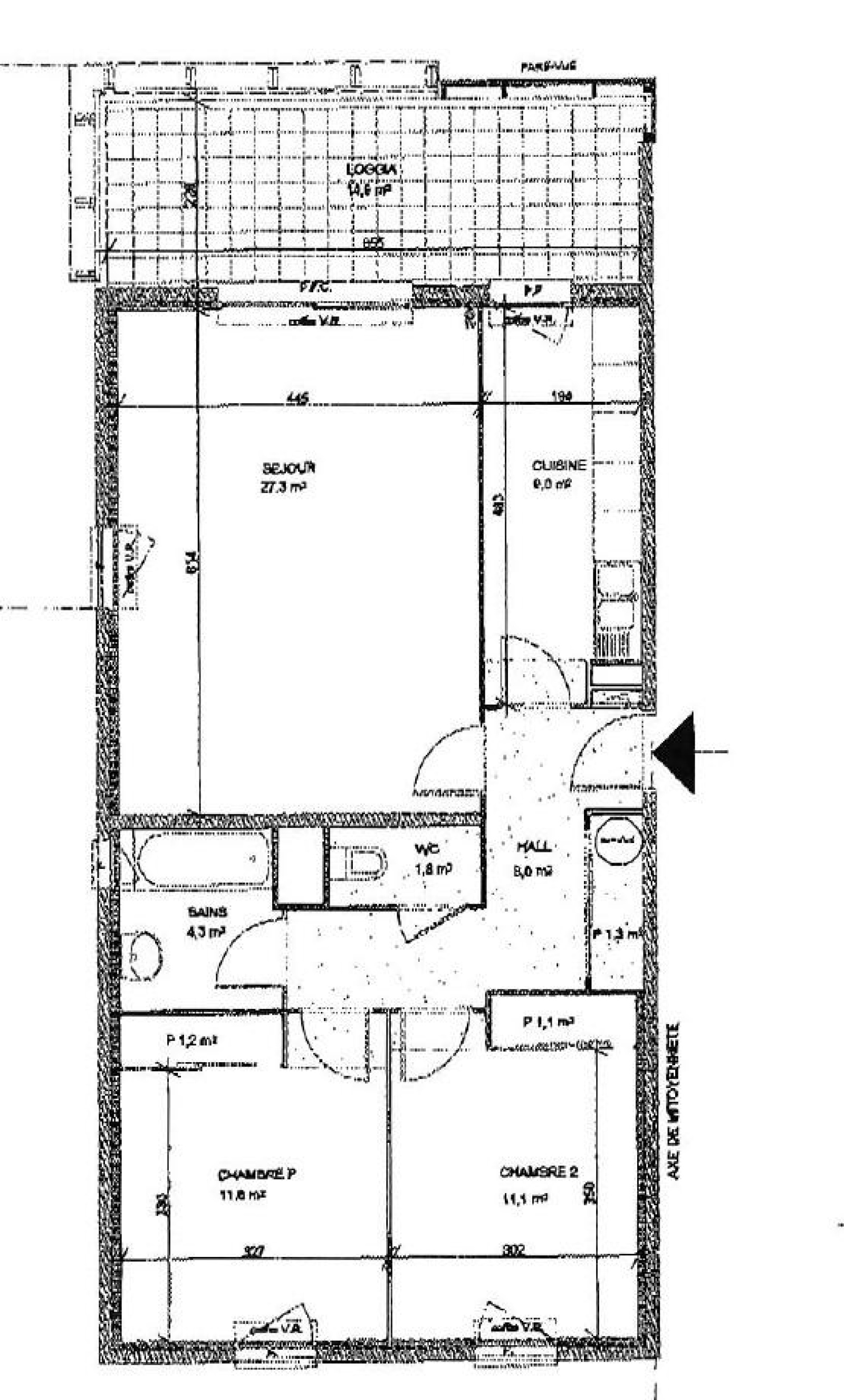
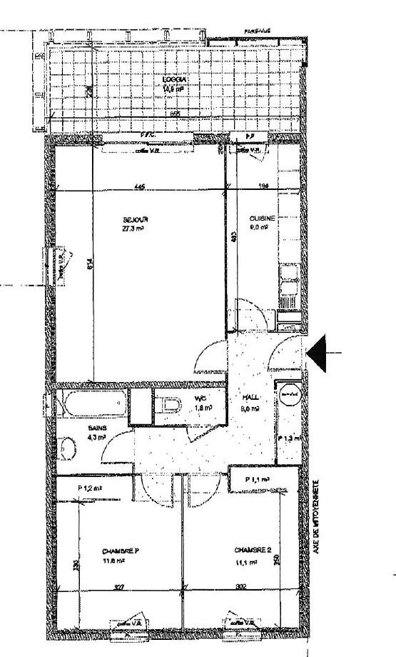
Agay (83530) - 3 pièces de 77 m² avec terrasse, garage - À proximité immédiate de la mer, au cœur du secteur recherché d'Agay, découvrez ce bel appartement 3 pièces de 77 m², situé dans une résidence fermée et sécurisée avec parc arboré, piscine et gardien. L'appartement offre un séjour spacieux de 27 m² ouvrant sur une terrasse de 15 m² exposée Nord-Est, idéale pour profiter d'un extérieur agréable et tempéré. La cuisine séparée permet un confort d'utilisation au quotidien. L'espace nuit se compose de deux chambres avec placards, d'une salle de bain et de WC séparés, garantissant une distribution fonctionnelle et confortable. Un garage privatif complète ce bien. Les atouts : Appartement 3 pièces - 77 m² Séjour de 27 m² Terrasse de 15 m² exposée Nord-Est Cuisine séparée 2 chambres avec placards Salle de bain et WC indépendants Garage Résidence fermée et sécurisée Parc paysager, piscine et gardien Proche mer et commodités Idéal pour une résidence principale, secondaire ou un investissement, dans un cadre calme et privilégié. À visiter rapidement - contact L'AGENCE ROXIM Frejus - 06 09 07 39 99 ou 04 94 54 16 42. Le prix du bien net vendeur est de 350 000,00 euros plus 4,80% TTC d'honoraires charge acquéreur soit un prix total de 366 800,00 euros. Montant estimé des dépenses annuelles d'énergie pour un usage standard : entre 984 et 1 332 euros. Prix moyens des énergies indexés en 2023.
Descriptif de ce bien
Général
Code postal 83700
Nombre de chambre(s) 2
Nombre de pièces 3
Etage 3
Ascenseur OUI
Détails
Nb de salle de bains 1
Mode de chauffage Electrique
Type de chauffage Air pulsé
Format de chauffage Individuel
Quartier Bord De Mer
Financier
Prix de vente 366 800 €
Les honoraires d'agence seront intégralement à la charge du vendeur  
Charges 1 €
Energie
DPE GES
Autour du bien
  • Commerces et santé
  • Loisirs
  • Ecoles
  • Transports
  • Pratique
Contacter pour ce bien
L'agence
Téléphone 04 67 91 79 19
Adresse
448 rue de la roqueturière 34090 Montpellier

* Champ obligatoire

Les informations recueillies sur ce formulaire sont enregistrées dans un fichier informatisé par La Boite Immo agissant comme Sous-traitant du traitement pour la gestion de la clientèle/prospects de l'Agence / du Réseau qui reste Responsable du Traitement de vos Données personnelles. La base légale du traitement repose sur l'intérêt légitime de l'Agence / du Réseau. Elles sont conservées jusqu'à demande de suppression et sont destinées à l'Agence / au Réseau. Conformément à la loi « informatique et libertés », vous disposez des droits d’accès, de rectification, d’effacement, d’opposition, de limitation et de portabilité de vos données. Vous pouvez retirer votre consentement à tout moment en contactant directement l’Agence / Le Réseau. Consultez le site https://cnil.fr/fr pour plus d’informations sur vos droits. Si vous estimez, après avoir contacté l'Agence / le Réseau, que vos droits « Informatique et Libertés » ne sont pas respectés, vous pouvez adresser une réclamation à la CNIL. Nous vous informons de l’existence de la liste d'opposition au démarchage téléphonique « Bloctel », sur laquelle vous pouvez vous inscrire ici : https://www.bloctel.gouv.fr Dans le cadre de la protection des Données personnelles, nous vous invitons à ne pas inscrire de Données sensibles dans le champ de saisie libre.
Ce site est protégé par reCAPTCHA, les Politiques de Confidentialité et les Conditions d'Utilisation de Google s'appliquent.

Découvrir nos outils